Баня с жилым этажом и террасой 7х11
























































Описание проекта
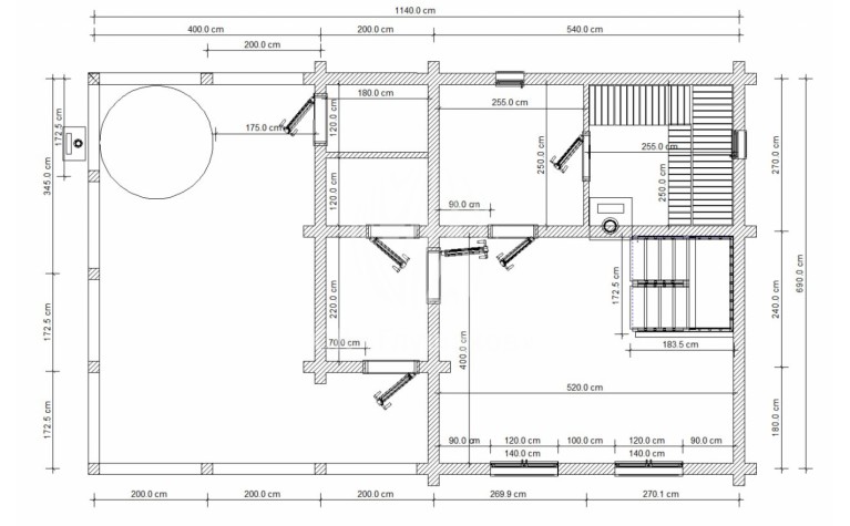
Представляем новый проект для тех, кто мечтает о полноценном загородном отдыхе — просторная полутораэтажная баня 7×11 м с жилым мансардным этажом и большой крытой террасой-беседкой.
Изюминка проекта — встроенный купальный чан с наружной печью, уже включённый в подарок от нашей компании. Чан встроен в террасу и позволяет наслаждаться тёплыми водными процедурами в любое время года.
Баня выполнена из клеёного бруса 190×140 мм — прочного, тёплого и долговечного материала, который отлично держит форму и не требует усадки. По желанию заказчика мы можем реализовать этот проект также из сухого бруса или по каркасной технологии.
Планировка продумана до мелочей:
-
Просторная комната отдыха — центр притяжения для всей семьи или компании друзей
-
Душевая и парная
-
Котельная
-
Санузел
-
Две уютные спальни на мансарде для круглогодичного проживания или комфортного отдыха
Проект сочетает в себе баню, гостевой дом и зону отдыха — идеальное решение для тех, кто хочет максимум уюта и функциональности на своём участке.
Базовая комплектация
По настоящему теплый угол в одноэтажных домах и банях включен в стоимость, подробнее смотрите по ссылке
Как мне говорят мои менеджеры, что наши клиенты читают и смотрят на сайте если не все, то многое, так вот, настал тот момент когда мне не надо оправдываться почему нет комплектации, почему цены нет на сайте, за меня говорят фото и видео наших работ, и если вы мне верите, то вас отсутствие какого то пункта в комплектации или цены на сайте не смутит, вы либо хотите строить со мной и моей командой или продолжаете выбирать в интернете. Если со мной то выскажите свои пожелания и мы вам посчитаем.
Итого: Дома и бани могут не иметь четкой цены, могут полностью не описаны комплектацией, вы должны понимать что я вас не обманываю и если вам нужен дом или баня, то я его посчитаю по вашим пожеланиям так как этого требует качество! Спасибо за понимание, ваш Дмитрий Глушаков!
Если вы все таки заказали строительство не у нас то уточните и проконтролируйте с каким инструментом приезжает бригада, и если вам скажут что мы всегда строим одной бензопилой и молотком под ключ, то вы поймете о каком качестве "Под Ключ" идет речь.
Наши бригады хорошо укомплектованы и физически хорошо построить быстро и с хорошим набором инструмента невозможно!
Будьте осторожны.
PS: Добавил позже видео бани как раз построенной одной бензопилой и молотком, ссылка на видео. Пусть это перевозная баня но поверьте, суть от этого не меняется. Также будет выглядеть ваша баня, но зато дешево!
В зависимости от выбранного типа бруса меняется цена на строительство. Мы самостоятельно изготавливаем профилированный брус, что позволяет нам максимально контролировать качество материала. Мы предлагаем следующие виды:
- Брус естественной влажности профилированный:
Сечения: 90х140, 140х140, 190х140. Профиль бруса с наплывом. Почему он лучше → видео или расширенное видео. Также сравните с обычным брусом → видео простого профиля бруса.
Для тех, кто не хочет смотреть: нашего бруса требуется на один ряд больше. Мы делаем это не для того, чтобы сделать дороже, а для того, чтобы сделать лучше! На сайтах, где предлагают более низкую цену, брус практически не имеет шипа и паза!
- Брус камерной сушки с компенсационными пропилами профилированный:
Сечения: 90х140, 140х140, 190х140 Обязательно посмотрите видео о компенсационных пропилах. Профиль бруса с наплывом.
- Клееный профилированный брус на основе финского клея KIILTO:
Сечения: 90х140, 140х140, 190х140 Используем профиль бруса с наплывом. Брус нашего производства, качество гарантируем. Для заказов наших клиентов отпускаем без наценки по себестоимости.
- Кедровый профилированный брус естественной влажности:
Сечения: 90х140, 140х140, 190х140 Также изготавливаем сухой и клееный брус из кедра. Идеально подходит для строительства бань — имеет очень приятный аромат, низкую теплопроводность и красивый красноватый цвет.
Обязательно делаем в «теплый угол». Опять же хочу напомнить, что мы работаем не на объемы и дешевую цену, а только на качество. Делается для всех размеров бруса, кроме 90х140 мм.
Стены по умолчанию собираются на гвозди, но в верхнем брусе сверлится отверстие, а в нижний вбивается гвоздь, видео, тем самым идет прижим бруса изначально, а в будущем брус не зависает на гвоздях, продавить гвоздь весом дома невозможно! Посмотрите полное видео о сверлении отверстий. Вариант сырого бруса ( естественной влажности ) крайне не желателен! Еще не маловажный факт, посмотрите видео и решитесь на этот шаг!
Двери устанавливаем филенчатые, деревянные ( если есть жилые комнаты)
Устанавливаем дверь из кедра, сделанную специально под нас на нашем производстве, посмотрите видео почему я стал делать двери сам.
Обязательно укладываем "Изоспан" или аналогичные материалы
Полы, потолки и стены мансарды утепляем минеральной ватой толщиной 100мм
Двойная обвязка из бруса 150х150 всегда входит в стоимость
Изготавливаются из доски 50х150
Всю красоту крыше и строению дает толщина и ширина свесов кровли, мы делаем минимум 300мм
Доска половая сухая шпунтованная, толщиной 36мм, собирается на саморезы в "Потай"
Вкладывается между лаг, толщина доски 25мм, доска обрезная
Я делаю лаги из бруса 100х150, с шагом в 700мм, обусловлено это только качеством и проверкой временем.
Зашиваются внутри сухой вагонкой сорт АБ
Делаем ее из доски обрезной толщиной 25мм
На террасные столбы если они есть в проекте для регулировки высоты террасы после усадки бруса в основном срубе устанавливаются резьбовые домкратики
цвет на выбор зеленый красный коричневый
Используем безсучковую осину для полков, кладем их по короткой стороне, то есть не в длину парной, а перпендикулярно стене. ( сделать пологи по длине можно с удорожанием )
Я настолько помешен на качестве что требую пологи прикручивать снизу чтоб не было торчащих саморезов и два самореза в ширину доски 90мм по краям, для того чтобы через неделю ваши доски для пологов не начинали болтаться из стороны в сторону от того что немного усохла доска каркаса и сами пологи. Подумайте, будет кто то об этом беспокоиться еще? Также каждая досочка обработана на месте спила наждачкой чтоб заусенцы от ТОРЦОВКИ (пилы) не тыкали вам в одно место, но вы конечно в гонке за скоростью можете выбрать дешево с гвоздями сверху и напилено бензопилой, посмотрите мое видео и поймете о чем идет речь.
Под вагонку осиновую укладывается фольга и проклеиваются соединения скотчем метализированным
Обшиваются осиновой вагонкой класс А ( безсучковая )
Прошу как руководитель компании просто прочитать Предисловие — я написал его специально для вас. Полезно сделать это до заказа строительства.
Часто слышим, что, мол, да, качество у вас хорошее, но и цены чуть выше. Чтобы вам не пришлось выбирать, мы предлагаем рассрочку на разницу в цене между нашими домами и банями из бруса и другими непонятными компаниями, где вам предложили строиться, например, на 50 тысяч рублей дешевле.
Окей, мы дадим вам рассрочку на эти самые условные 50 000 рублей на 1 год. Это всего 4167 рублей в месяц, при этом дом/баню вам будет строить компания с отличной репутацией, подтверждёнными отзывами клиентов и грамотными плотниками.
Чтобы внедрить эту акцию, мы должны знать ваше мнение — интересно ли вам такое предложение? Пожалуйста, проголосуйте в опросе в нашей группе ВКонтакте. Ваш голос окажет реальное влияние на политику компании.
Мне важно не просто продать вам баню, мне гораздо больше денег доставляет удовольствие разместить фото, видео красивой и практичной бани. Поэтому сегодня 1 Августа 2019 стартует акция, Люстра как на видео из кедра в подарок, два светильника у входа в баню как на видео, спинка в парной как на видео, удлиненный нижний полог в парной как на видео, два угловых абажура в парной как на видео, Панно из можжевельника в парной встроенное в стену как на видео, дверь в парную нашего производства как на видео ( елка с сучками ), комплект мебели как на видео. Есть одно условие, ваша баня изначально стоит на 20тр дороже, но когда я, Дмитрий Глушаков, получаю от вас по почте фото бани и видео обзор то перевожу вам на карту или вы заезжаете в офис за вашими 20тр. По-моему справедливо.
Давайте я вам немного раскажу что это за цена, наверное вы ищите как всегда цену, и знаете что такое Пестово. Там предлагают немыслимо ниские цены на дома и бани из бруса, по честному, вы также об этом знаете, речь о качестве не стоит, есть только цена хорошая, я не скажу что все в Пестово строют плохо, но как не нарваться на тех кто строит ужасно?
У меня есть там друзья и родственники, так вот , я могу поручиться за одно из них, он сам себе предприниматель, сам принимает заказы, сам считает, сам ездит на машине грузовой, отправляет бригады, в общем его цена очень даже приемлемая и раз я за него ручаюсь то и качество для Пестово приемлимо. Но скажу, ко мне это не относится никак, я всего лишь хочу что бы вы, видя мою работу не закрывали сайт, а могли получить второй шанс на более выгодную цену под мои гарантии.
В письме указывайте что вы хотите получить цену и из Пестово, но помните в Пестово нет Клееного бруса, сухой подразумевает "Типа сухой" и если быть честным то все ваше под ключ может быть построено одним молотком и бензопилой.
Рассчитывается отдельно
При заказе у нас объекта мы можем привести подобную кровать, сделать под определенный размер матраса, данная модель 1800х2000 по матрасу, ссылка на видео
Дополнением вашей бани будет красивая вешалка, ссылка на видео
Начали изготовление угла "Ласточкин хвост" , смотрите видео и мои рассуждения по ссылке. Хочу сказать всем желающим что на этот угол ограниченное предложение, то есть не все бригады работают с этим углом. Цена за него оговаривается отдельно. Вы должны понимать что мы строим на голову лучше тех кого вы нам преподносите как пример "А вот там посчитали дешевле", поэтому мы можем баню построить и с таким углом если там есть прибыль, но можем и посчитать этот угол отдельно, так как иногда бани и дома строятся с минимальной прибылью. Фото готовой бани с углом в Ласточкин Хвост.
Можно собрать стены на подпружиненные шурупы, вот примерное видео как это делается
Очень важный момент, посмотрите видео от и до и все поймете
Мы за доп плату устанавливаем хорошую дверь с порошковой краской, отечественного производства, она не облезет в отличии от китайской которую вам ставят бесплатно и ее нужно будет выкинуть
Можно заказать и мы привезем и установим их, но напомню, что наши окна деревянные стеклопакеты, не хуже пластика, это не имитация а именно хорошие деревянные окна
цвет на выбор, цену уточняйте
Мы делаем свайно винтовой фундамент или железобетонные сваи, для ленточного мы предоставим чертежи и вы самостоятельно сделаете его, опорно столбчатый который у многих бесплатно идет мы не делаем потому что я не обманываю никого, это не фундамент даже если бесплатно!
Так называемая вентиляция "Второе дыхание" делается для заядлых баньщиков, смотрите виде и тест драйв
Предназначена для быстрого обмена воздухом, есть нижний и верхний сброс, ссылка на видео и тет драйв, это древний вариант, грамоздкий и не красивый
За дополнительную плату привезем нужное количество камней для печи
Установим печь из варианта предложенного нами, выбранного варианта вами или вы привезете свою и мы ее установим ( за договорную стоимость )
В парной можно и нужно наверное устанавливать пластиковый поддон во всю парную с деревянными трапиками, смотрите видео
Доставка бань считается индивидуально
При заказе бани с доставкой в готовом виде или сборкой на участке в зимние месяцы 2023-2024 году в подарок:
- обливное устройство «Обливасту»,
- вентиляция «второе дыхание»,
- принудительная вентиляция в парной «Димасту»,
- притопочная вентиляция под печь,
- каменка на трубе нашего производства,
- сетка от грызунов.
То есть в подарок вы получаете топовую комплектацию бани со всеми нашими последними усовершенствованиями. Редкое предложение, которым определённо стоит воспользоваться!
Акция стартует 25 ноября и продлится до тех пор, пока мы не загрузим работой цеха на все зимние месяцы. Обязательно требуйте подарки с менеджеров!
За 2024 год мы серьёзно расширили производство термомодифицированной древесины – замечательного строительного материала из дерева, который по своим свойствам больше похож на твёрдый прочный пластик.
Мы пошли дальше: изготовили термомодифицированный клееный брус! Практически не уязвимый материал. Дома и бани из него не дают усадку, венцы не деформируются от сухости или влажности, не покрываются трещинами и щелями.
В связи с новой продукцией объявляем акцию: при строительстве дома или бани в зимние месяцы стоимость термомодифицированного бруса по цене обычного.
За подробностями обращайтесь к менеджерам!
Реальные видео отзывы наших клиентов
По голосу слышно – эту баню уже любят всей душой!
Построили классный брусовой домик и, кажется, Владельцы вполне довольны! Благодарим за оказанное доверие и счастливого новоселья!
Мой первый дом вот только что построен. Я очень рад. Всё прошло замечательно: и общение в офисе, и тут на участке. Алексей — замечательный менеджер. И ещё большое спасибо Эдуарду, который был нашим бригадиром.
Вам нужна консультация? Пожалуйста, обращайтесь!
Написать нам
Комментарии